Neues Bürgerzentrum Angermünde

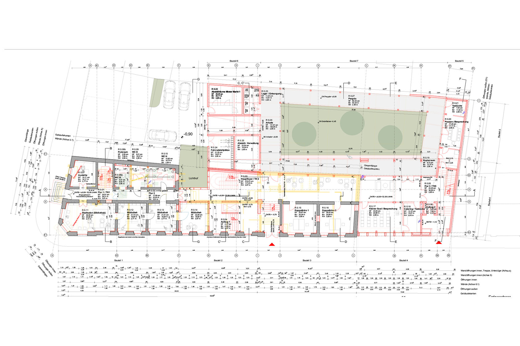
Die seit Ende der 1990er Jahre leerstehenden Gebäude der Brüderstraße 17/18 im historischen Stadtkern der Stadt Angermünde werden zum kommunalen Verwaltungssitz mit Bürgersaal, Stadtbibliothek und Archiv umgebaut und erweitert. Das Ensemble besteht in Summe aus vier Gebäudeteilen.

Im Rahmen der konstruktiven Bestandsaufnahme erfolgte eine ausführliche Dokumentation der vorhandenen Konstruktion.

Die geplante Umnutzung und damit einhergehenden vorgesehenen Änderungen ziehen umfangreiche Eingriffe in die tragende Konstruktion nach sich.

Die historische Dachkonstruktion im Gebäudeteil 1 wurde unter Berücksichtigung der neuen Anforderungen aus Nutzung und neuer Installationen in statischer Hinsicht überprüft. Durch die Ergänzung von Stahlrahmen gelingt es, die Holzkonstruktion zu erhalten und die gewünschte Raumfreiheit im Dachgeschoss herzustellen.
Im Gebäudeteil 3 wird die Decke über dem 1.Obergeschoss entfernt, so dass der Saal aus des Errichtungszeit wieder in seiner Form in Erscheinung tritt. Dieser Raum wird durch eine neue Galerie ergänzt, die als weitgespannte Stahlkonstruktion konzipiert wird. Punktuell erfolgt eine Abhängung in die Ebene des Dachgeschosses, um die gewünschte Stützenfreiheit im Saal zu gewährleisten.

Die Gebäudeteile 2 und 4 weisen infolge des langen Leerstandes erhebliche Schädigungen auf. Sie werden abgebrochen und unter Berücksichtigung der neuen Nutzung und Gestaltung im Innern in Massivbauweise wieder aufgebaut.
Die Untersuchung des Baugrundes ergab schwierige Baugrundverhältnisse, die eine konventionelle flache Gründung über Streifenfundamente oder Bodenplatten ausschließen. Für die neu zu errichtenden Gebäude ist eine Spezialgründung mittels Pfähle erforderlich.

Im Rahmen des Brandschutznachweises wird die Bestandskonstruktion gewürdigt und entsprechende Abweichungen in der Feuerwiderstandsdauer begründet. Großes Augenmerk liegt auf der Bildung von Nutzungseinheiten zur Minimierung von notwendigen Fluren für größtmögliche Flexibilität in der Nutzung.

Die Energetische Bilanzierung für das Gesamtgebäude beurteilt die Gebäudehülle im Bestand hinsichtlich Mindestwärmeschutz und Anforderungen nach GEG bei Änderungen und Erweiterung. Die Außenwände werden unter Berücksichtigung des historischen Erscheinungsbildes mit Innendämmung ertüchtigt.
Als Wärmeerzeuger ist der Einbau einer Pelletheizung vorgesehen. Diese erfüllt die gestellten Anforderungen an den Einsatz erneuerbarer Energien.

 

Pläne
ARGE 3PO Architekten und Eilers Architekten BDA

Datenschutzhinweise & Cookie-Einstellungen

Wir verwenden Cookies, um Ihnen die Inhalte und Funktionen der Website bestmöglich anzubieten. Darüber hinaus verwenden wir Cookies zu Analyse-Zwecken.

Zur Datenschutzerklärung und den Cookie-Einstellungen.

Allen zustimmennur notwendige Cookies zulassen

Datenschutzhinweise & Cookie-Einstellungen

Bitte beachten Sie, dass technisch erforderliche Cookies gesetzt werden müssen, um wie in unseren Datenschutzhinweisen beschrieben, die Funktionalität unserer Website aufrecht zu erhalten. Nur mit Ihrer Zustimmung verwenden wir darüber hinaus Cookies zu Analyse-Zwecken. Weitere Details, insbesondere zur Speicherdauer und den Empfängern, finden Sie in unserer Datenschutzerklärung. In den Cookie-Einstellungen können Sie Ihre Auswahl anpassen.

PHP Sitzung
Das Cookie PHPSESSID ist für PHP-Anwendungen. Das Cookie wird verwendet um die eindeutige Session-ID eines Benutzers zu speichern und zu identifizieren um die Benutzersitzung auf der Website zu verwalten. Das Cookie ist ein Session-Cookie und wird gelöscht, wenn alle Browser-Fenster geschlossen werden.
Google Maps
Google Maps ist ein Karten-Dienst des Unternehmens Google LLC, mit dessen Hilfe auf unserer Seite Orte auf Karten dargestellt werden können.
YouTube
YouTube ist ein Videoportal des Unternehmens Google LLC, bei dem die Benutzer auf dem Portal Videoclips ansehen, bewerten, kommentieren und selbst hochladen können. YouTube wird benutzt um Videos innerhalb der Seite abspielen zu können.
Vimeo
Vimeo ist ein Videoportal des Unternehmens Vimeo, Inc., bei dem die Benutzer auf dem Portal Videoclips ansehen, bewerten, kommentieren und selbst hochladen können. Vimeo wird benutzt um Videos innerhalb der Seite abspielen zu können.
Google Analytics
Google Analytics installiert die Cookie´s _ga und _gid. Diese Cookies werden verwendet um Besucher-, Sitzungs- und Kampagnendaten zu berechnen und die Nutzung der Website für einen Analysebericht zu erfassen. Die Cookies speichern diese Informationen anonym und weisen eine zufällig generierte Nummer Besuchern zu um sie eindeutig zu identifizieren.
Matomo
Matomo ist eine Open-Source-Webanwendung zur Analyse des Nutzerverhaltens beim Aufruf der Website.